КК 84

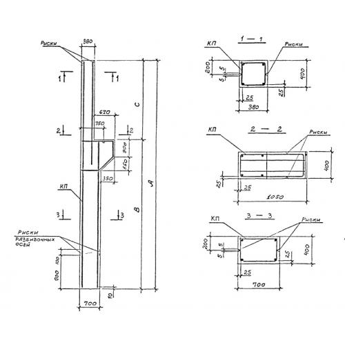
Чертеж изделия:
Характеристики изделия:
ПараметрЗначение
длина9850 мм
ширина400 мм
высота1050 мм
вес5900 кг
Шифр2021-164.1

КК 84 Колонны по Шифру 2021-164.1.